FLAT御器所
ロフトに専用庭まで!?@御器所
問い合わせる
- 賃料
- 74,000円〜92,000円
- 間取り
- 1LDK〜
| 費用 |
敷金:0円 礼金:1ヶ月 保証金:1ヶ月 償却金/敷引:1ヶ月 更新料:1ヶ月 駐車場:なし |
|---|---|
| 所在地 | 愛知県名古屋市昭和区塩付通4丁目19番3 |
| 交通 |
地下鉄鶴舞線「御器所」9分 地下鉄桜通線「桜山」15分 地下鉄鶴舞線「川名」15分 |
| 築年/構造 | 2026年3月完成 / 地上3階建鉄筋コンクリート造(RC) |
| 設備 | ■都市ガス |
| 備考 |
-
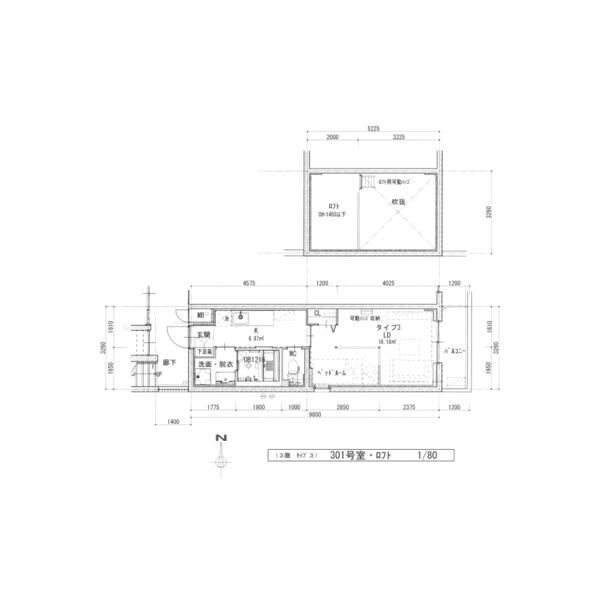
Aタイプ
1LDK/37.98㎡
賃料86,000円〜
-
Bタイプ
1LDK/31.34㎡
賃料83,000円〜
-
Cタイプ
1LDK/31.44㎡
賃料74,000円〜
物件の評価を星の数でチェック!

総合評価:ホシ3つ
コンシェルジュ
オススメポイント
■地下鉄鶴舞線「御器所」徒歩9分、桜通線「桜山」徒歩15分と2線が徒歩圏にありどこへでも行きやすい!
■生活するうえで欠かせないスーパーやドラッグストア、コンビニが徒歩圏内にありとっても便利です!!桜通線から乗れば名古屋駅まで1本で行けますので、休日のショッピングやグルメも快適にお楽しみいただけます!☆
■機能に関しては、追い焚きや浴室乾燥機がありますのでお天気やお時間に左右されることなくお過ごしいただけます♪さらに、IHクッキングヒーターですので、お掃除や安全性の高いキッチンになっております!
■こちらの物件は専用庭やロフトといった他にはない珍しいつくりとなっております!!お庭で優雅に過ごしたり、ロフトは趣味の空間にしたりなど様々な楽しみ方ができます♪
■仲介手数料0円のホシみっつ不動産なら、初期費用が断然お得!空室表示がなくても一度お問い合わせください。他社で見つけた物件のお問い合わせや当日の飛び込みも大歓迎!LINEでもお問い合わせ可能です!
この物件の周辺環境
-
ファミリーマート昭和塩付通三丁目店
(244m) -
マックスバリュ御器所店
(191m) -
ドラッグスギヤマ塩付通店
(352m)
※一部物件は契約事務手数料を頂く可能性がございます
この物件について問い合わせる
掲載していない非公開物件もご紹介可能です!
「こんな部屋ある?」を是非私たちにご相談ください。
052-253-5387
営業時間/10:00-19:00(火、水・GW・年末年始定休)














