CREST TAPP名古屋山王
名駅、伏見、大須?全部庭だよ@山王
24時間緊急対応 宅配ボックス
問い合わせる
- 賃料
- 56,000円〜
- 間取り
- 1K〜
| 費用 |
敷金:0円 礼金:0円 保証金:0ヶ月 償却金/敷引:0ヶ月 更新料:11000円 駐車場:なし |
|---|---|
| 所在地 | 愛知県名古屋市中川区西日置1丁目7-21 |
| 交通 |
名鉄名古屋本線「山王」11分 あおなみ線「ささしまライブ」16分 地下鉄鶴舞線「大須観音」17分 近鉄名古屋線「米野」21分 |
| 築年/構造 | 2026年3月完成 / 地上15階建鉄筋コンクリート造(RC) |
| 設備 | ■エレベータ ■都市ガス ■敷地内ごみ置場 |
| 備考 | |
| キャン ペーン中 |
当月分日割り・翌月分の家賃+管理費無料 |
-
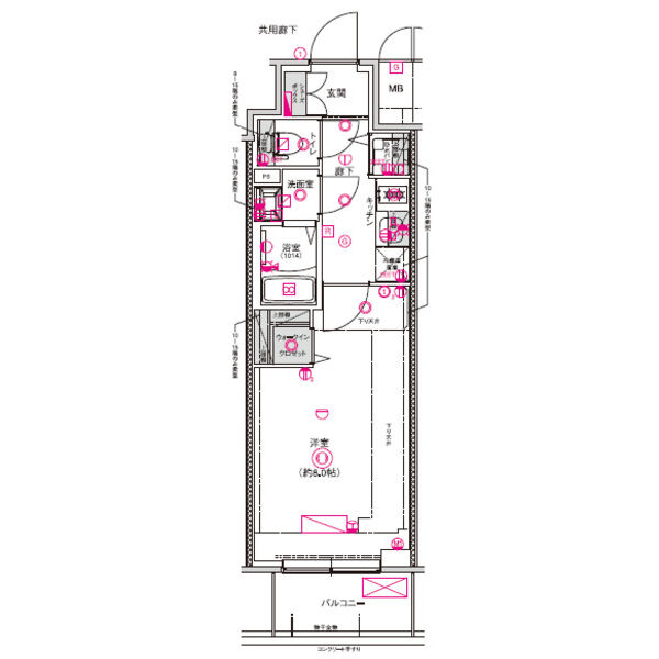
Bタイプ
1K/25.53㎡
賃料56,000円〜
物件の評価を星の数でチェック!

総合評価:ホシ3つ
コンシェルジュ
オススメポイント
■名鉄本線「山王」駅徒歩11分のこちらの物件!!!名駅や伏見、大須エリアにほど近い位置であり、自転車を利用した移動が便利です!!もちろん電車を利用すれば、名鉄や鶴舞線、あおなみ線をはじめとした様々な路線が簡単に利用可能!!!長い距離の移動もラクラクです!!!
■JR東海道線と名古屋高速、大須通に囲まれたエリアに属していますが、それぞれから一番遠く離れた中心地に位置しているため、高い利便性がありながら騒音問題は問題ナシ!!!また大学やオフィスの集中地にも近く、食事する場所にも困りません!!!
■ペットOKの1K・1DK物件です!!2口ガスコンロ、浴室乾燥機、独立洗面台、シャワートイレと充実した設備を誇ります!!!光回線の無料インターネットを備えており、動画視聴やオンラインゲーム、テレワークなども快適に行うことができます!!!
■仲介手数料0円のホシみっつ不動産なら、初期費用が断然お得!空室表示がなくても一度お問い合わせください。他社で見つけた物件のお問い合わせや当日の飛び込みも大歓迎!LINEでもお問い合わせ可能です!
この物件の周辺環境
-
ミニストップ西日置店
(184m) -
ヤマナカ松原店
(723m) -
ドラッグスギヤマ松原店
(716m)
※一部物件は契約事務手数料を頂く可能性がございます
この物件について問い合わせる
掲載していない非公開物件もご紹介可能です!
「こんな部屋ある?」を是非私たちにご相談ください。
052-253-5387
営業時間/10:00-19:00(火、水・GW・年末年始定休)














