ホシみっつ不動産は仲介0円で暮らせます!

S-RESIDENCE烏森aureate(オリート)

  • キャン
    ペーン中

この一歩が、“金”になる!@烏森

宅配ボックス

空室状況を
問い合わせる
賃料
72,000円〜72,500
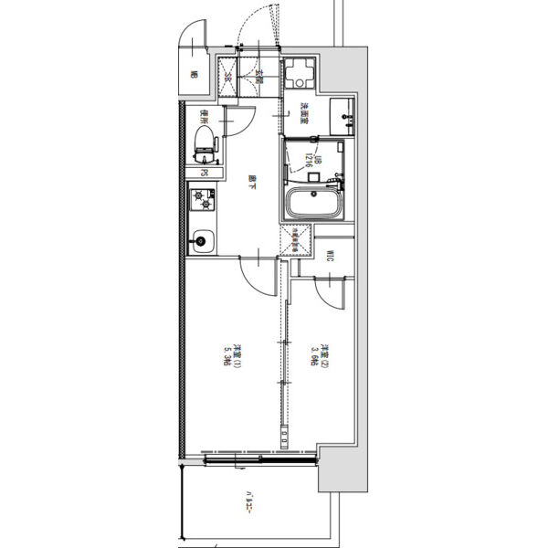
間取り
2K1LDK
費用 敷金:0ヶ月  礼金:0ヶ月
保証金:0ヶ月
更新料:1ヶ月
駐車場:4,400円/台
所在地 愛知県名古屋市中村区牛田通2丁目20番
交通 近鉄名古屋線「烏森」5分
近鉄名古屋線「黄金」9分
あおなみ線「小本」12分
地下鉄東山線「岩塚」17分
築年/構造 2025年11月完成 / 地上12階建鉄筋コンクリート造(RC)
設備 ■エレベータ ■都市ガス ■敷地内ごみ置場 ■駐輪場 ■駐車場 ■駐車場(平面) ■駐車場(機械式) 
備考
キャン
ペーン中
★申し込みから1ヶ月以内の契約開始でフリーレント5月末まで(賃料+共益費)、初回保証料0円! ★ビックカメラオンラインからお好きな家具家電プレゼント!

A タイプ  賃料 72,500円〜  2K/29.79㎡  共益費 8,000円 印刷

コンロ ■ガス
バス・
トイレ・
洗面所
■給湯(ガス)■独立洗面所■温水洗浄便座■UB(ユニットバス)■浴室乾燥機
キッチン ■ガスコンロ(2口)
収納 ■下駄箱
TV・通信 ■インターネット対応■インターネット無料
冷暖房 ■エアコン
設備・
機能
■TVインターフォン■室内洗濯機置場■宅配ボックス
方位 ■東

物件の評価を星の数でチェック!

総合評価:ホシ3

コンシェルジュ
オススメポイント

■近鉄名古屋線「烏森」駅まで徒歩5分!!近鉄名古屋駅まで電車1本6分で行けちゃうので、通勤通学に便利な立地です!!また、烏森駅に加えあおなみ線「小本」駅徒歩12分、名古屋市東山線「岩塚」駅徒歩17分と3線、3駅の複数路線が利用可能な珍しい物件です!

■駅の近くに位置していながら、線路や高速、幹線道路から少し離れておりますので、騒音が気になる方にもお勧めできる物件です!!周辺には徒歩1分の位置にコンビニがあるほか、スーパー、ドラッグストア、レストランなども徒歩圏内ですので非常に充実しています!!!

■2口ガスコンロ、独立洗面台、浴室乾燥機、シャワートイレと生活が豊かになる設備をしっかり備えた物件です!!!カメラ付きインターホン、オートロック、宅配ボックスありでセキュリティも万全♪

■仲介手数料0円のホシみっつ不動産なら、初期費用が断然お得!空室表示がなくても一度お問い合わせください。他社で見つけた物件のお問い合わせや当日の飛び込みも大歓迎!LINEでもお問い合わせ可能です!

この物件の周辺環境

  • セブンイレブン名古屋牛田通店
    (52m)
  • ナフコトミダ千成店
    (647m)
  • V・drug黄金店
    (617m)

※一部物件は契約事務手数料を頂く可能性がございます

この物件について問い合わせる

掲載していない非公開物件もご紹介可能です!
「こんな部屋ある?」を是非私たちにご相談ください。

052-253-5387

営業時間/10:00-19:00(火、水・GW・年末年始定休)

必須 が付いている項目は必須入力です。

ご希望物件 物件名 S-RESIDENCE烏森aureate(オリート)
お名前
メールアドレス
連絡先電話番号
ご希望家賃
ご案内希望日
ご質問・ご要望など
Webサイト

この項目は必須です

個人情報の取り扱いについてプライバシーポリシーをご確認頂き、同意の上送信してください。

実は、非公開物件も!お問い合わせ下さい。

052-253-5387

<お電話対応時間> 10:00〜19:00 (火、水・GW・年末年始定休)

閉じる