ホシみっつ不動産は仲介0円で暮らせます!

Coco Cat 岩塚

猫好きさん集合〜!@岩塚

24時間緊急対応 宅配ボックス

空室状況を
問い合わせる
賃料
70,000円〜72,000
間取り
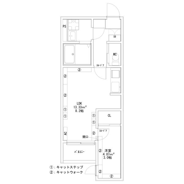
1LDK
費用 敷金:0円  礼金:0円
保証金:0ヶ月
更新料:0ヶ月
駐車場:なし
所在地 愛知県名古屋市中村区沖田町383
交通 地下鉄東山線「岩塚」4分
近鉄名古屋線「近鉄八田」15分
近鉄名古屋線「烏森」18分
築年/構造 2025年11月完成 / 地上3階建木造
設備 ■敷地内ごみ置場 ■プロパンガス 
備考

B タイプ  賃料 70,000円〜  1LDK/30.01㎡  共益費 4,000円 印刷

コンロ ■ガス ■設置済
バス・
トイレ・
洗面所
キッチン ■ガスコンロ(2口)
収納 ■収納
TV・通信 ■BS対応■電話■インターネット対応■インターネット無料
冷暖房 ■エアコン
設備・
機能
■TVインターフォン■室内洗濯機置場■フローリング■宅配ボックス■ペット相談
方位 ■南

物件の評価を星の数でチェック!

総合評価:ホシ3

コンシェルジュ
オススメポイント

■東山線「岩塚」駅まで徒歩4分!駅チカ派にも嬉しい距離感で、通勤・お出かけがサクッと完結♪


■スーパー徒歩4分、コンビニ徒歩3分、ドラッグストア徒歩5分。全部徒歩圏内。生活動線が良すぎて、思わず「助かる〜!」って言いたくなる立地です!


■間取りはゆったり1LDK。ひとり暮らしはもちろん、ペットとゆったり暮らしたい方にもぴったり◎


■インターネット無料&工事不要!Wi-Fi対応で、ゲームも動画もサクサク。推し活も在宅ワークも問題なしです!


■オートロック完備でセキュリティ面も安心。宅配ボックス付きだから、不在時のお届け物もあとでゆっくり受け取れます!


■猫3匹まで飼育OK!!!付けキャットタワー、走り回れるリビング、ストッパー付きペットスルードアなど、まさに猫様ファースト設計の住まいです。「猫と暮らしたい」じゃなくて、「猫中心で暮らします!」という方にも最高の物件。


■名前のとおり、ここは猫と暮らすための住まい「Coco Cat 岩塚」。


■猫を飼っている方も、これからお迎え予定の方も――ここなら『暮らし』と『猫』の両立できます♪


■仲介手数料0円のホシみっつ不動産なら、初期費用が断然お得!空室表示がなくても一度お問い合わせください。他社で見つけた物件のお問い合わせや当日の飛び込みも大歓迎!LINEでもお問い合わせ可能です!

この物件の周辺環境

  • アオキスーパー烏森店
    (207m)
  • デイリーヤマザキ岩塚駅店
    (74m)
  • B&Dドラッグストア岩塚店
    (214m)

※一部物件は契約事務手数料を頂く可能性がございます

この物件について問い合わせる

掲載していない非公開物件もご紹介可能です!
「こんな部屋ある?」を是非私たちにご相談ください。

052-253-5387

営業時間/10:00-19:00(火、水・GW・年末年始定休)

必須 が付いている項目は必須入力です。

ご希望物件 物件名 Coco Cat 岩塚
お名前
メールアドレス
連絡先電話番号
ご希望家賃
ご案内希望日
ご質問・ご要望など
Webサイト

この項目は必須です

個人情報の取り扱いについてプライバシーポリシーをご確認頂き、同意の上送信してください。

実は、非公開物件も!お問い合わせ下さい。

052-253-5387

<お電話対応時間> 10:00〜19:00 (火、水・GW・年末年始定休)

閉じる